OAC 013002 Vibrateurs

Vibrateur électromagnétique

Accueil  |  Electro-aimants, Ventouses, Freins  |  Vibrateurs  |   
OAC 013002
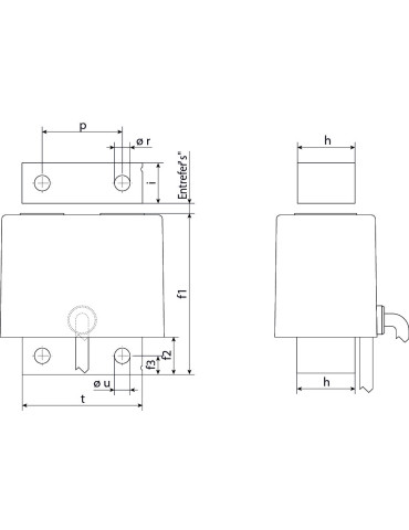
Plan dimensionnel
Plan dimensionnel

Vibrateur électromagnétique

OAC 013002 : le corps magnétique fixe de ce vibrateur, alimenté avec un courant alternatif 230V AC, génère une attraction alternative à 50 Hz sur le bloc en vis-à-vis qui est fixé sur la machine à vibrer. Ce bloc magnetique spécial sera positionné à distance du vibrateur formant ainsi un entrefer de fonctionnement. Veiller à ce qu'il n'y ait aucun contact mécanique entre le vibrateur et le bloc magnétique lors du fonctionnement afin d'éviter les chocs. Le réglage de l'amplitude du mouvement se fait grâce au variateur de tension VF6.
Vibrateurs
Les fonctions grisées nécesitent d'être connecté à votre compte
se connecter à mon compte
Gamme de produit
Vibrateur électromagnétique
Gamme de produit
Vibrateur électromagnétique
Fréquence
50
Fréquence
50 Hz
Indice de protection de marche
IP54
Raccordement
Fils libres
Classe d'isolation
Y
Tension standard
230V AC/50 Hz monophasé
Puissance à 50Hz
1826
Puissance à 50Hz
1826 VA
Entrefer nominal
5
Entrefer nominal
5 mm
Force de pointe avec entrefer nominal
400
Force de pointe avec entrefer nominal
400 N
Poids du vibrateur (sans plaque de fixation)
19
Poids du vibrateur (sans plaque de fixation)
19 kg
Poids du bloc magnétique
3,1
Poids du bloc magnétique
3,1 kg